
Specialist Laboratory Fitout
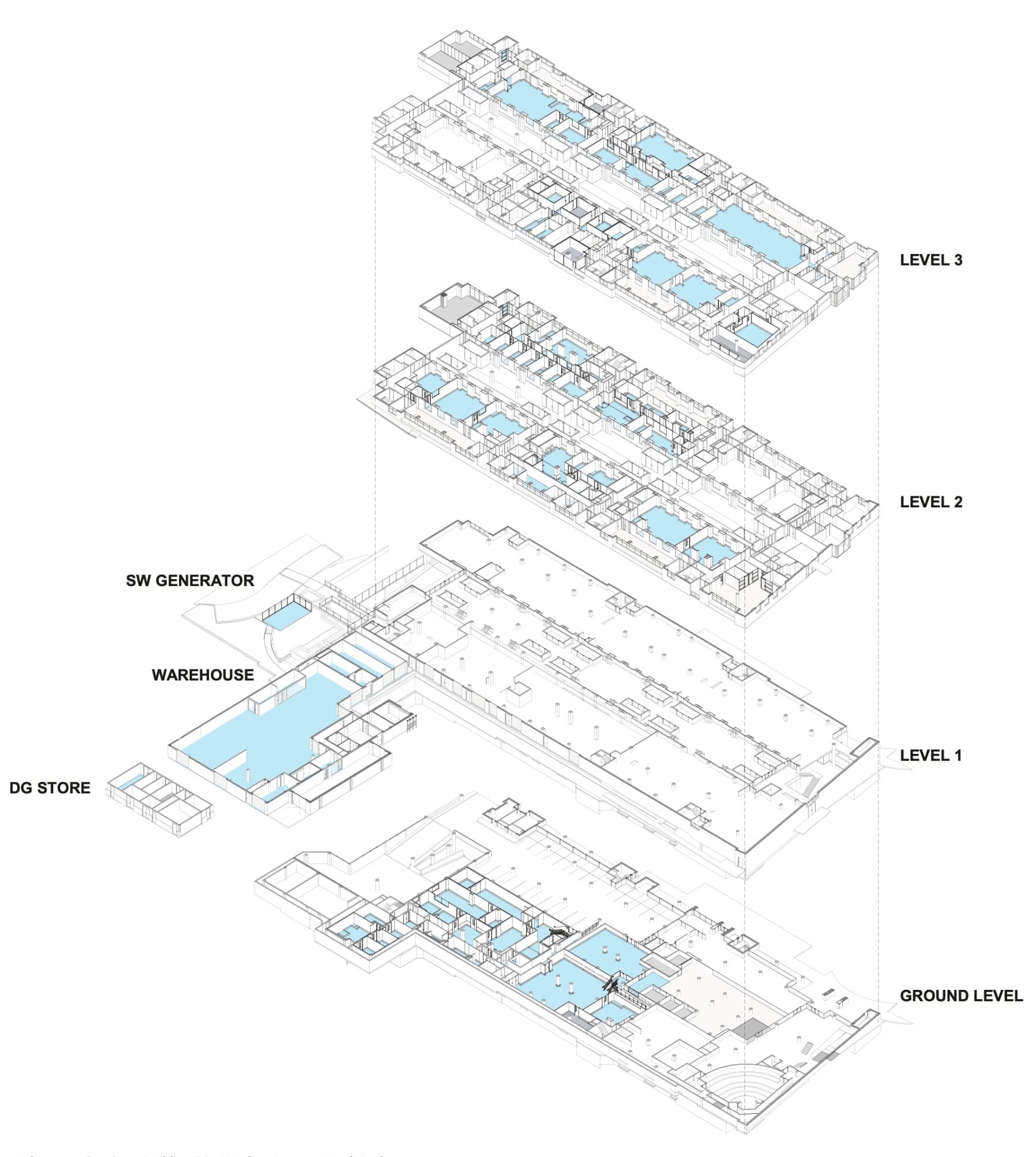
Sydney Water Testing Laboratory — North Ryde
Category
Specialist Laboratory Fitout
Location
11 Julius Avenue, North Ryde NSW 2113
Size
$36m (programme $40m+)
Year
2024–2026 (ongoing)
The Project
Sydney Water's Testing Laboratory at 11 Julius Avenue, North Ryde is the most technically demanding project I have led. It is a purpose-built water testing laboratory consolidating operations from the organisation's ageing West Ryde facilities into a four-level building originally designed for CSIRO. The fitout includes over 30 fume cupboards, PC2 containment spaces, purified water systems, and the full complement of mechanical, hydraulic, and gas infrastructure that a working laboratory demands, plus ground floor warehouse, dangerous goods storage, and a dedicated generator.
The Challenge
This project has been running since 2022, and the challenge has evolved at every stage. Early on, the task was foundational, developing the user requirements brief from scratch and running a site options analysis to determine whether to build new or lease and fit out an existing specialist building. Once 11 Julius Avenue was selected for its CSIRO heritage and laboratory-ready base build, the challenge shifted to managing an extraordinarily detailed design process with a laboratory user group whose requirements for bench layout, fume hood placement, gas supply, containment zoning, and workflow sequencing left no margin for ambiguity. Now, in construction, the challenge is delivering a fitout of this complexity on programme with Shape Australia while continuing to act as both Project Manager and Acting Superintendent.

My Approach
I have led every phase of this project. I started by assembling the specialist consultant team and developing the user requirements brief with Sydney Water's laboratory scientists, the document that defined what the new facility needed to achieve before a site was even identified. I managed the site selection process, then led the full design development through concept, schematic, design development, and tender documentation stages, working with 2CA Architecture and then Jazmax Architecture as lead project architects. The stakeholder engagement was intensive, sustained workshops with the laboratory user group to resolve the technical specifics that drive a project like this. I prepared the tender documentation, managed contractor interviews, coordinated the evaluation with Sydney Water's procurement team, and negotiated the contract award with Shape Australia in July 2025. I now administer the construction contract and manage design coordination on site, with completion targeted for August 2026 and laboratory go-live in December 2026.


The Outcome
This project is not yet complete, but it has already been defining for me. It draws directly on the laboratory experience I built at the Charles Perkins Centre for the University of Sydney, and it has deepened my understanding of specialist environments in ways that no standard workplace fitout could. The depth of technical knowledge required, and the credibility needed to hold complex conversations with scientists, engineers and contractors, is something I have built over years. This project is the clearest example of why Yaxley Studio exists: to bring that kind of specialist capability directly to clients who need it, without the overhead of a large firm.

